Immobilie

DHH, ca. 135m² Wfl., 1124m² Grdst., Keller, Nebengelass & Garage für die Familie in Tutow!

Kommen Sie herein
in den zentralen Flurbereich
Das Tageslicht-Duschbad
Das lichtdurchflutete
Wohnzimmer
Einrichtungsbeispiel
Das ruhige
Schlafzimmer
Einrichtungsbeispiel
Die unverzichtbare Küche
Willkommen im
Obergeschoss
Das Tageslicht-Wannenbad
Das geräumige
Schlafzimmer
Das gut geschnittene
Kinderzimmer
Platz für Ihr Büro
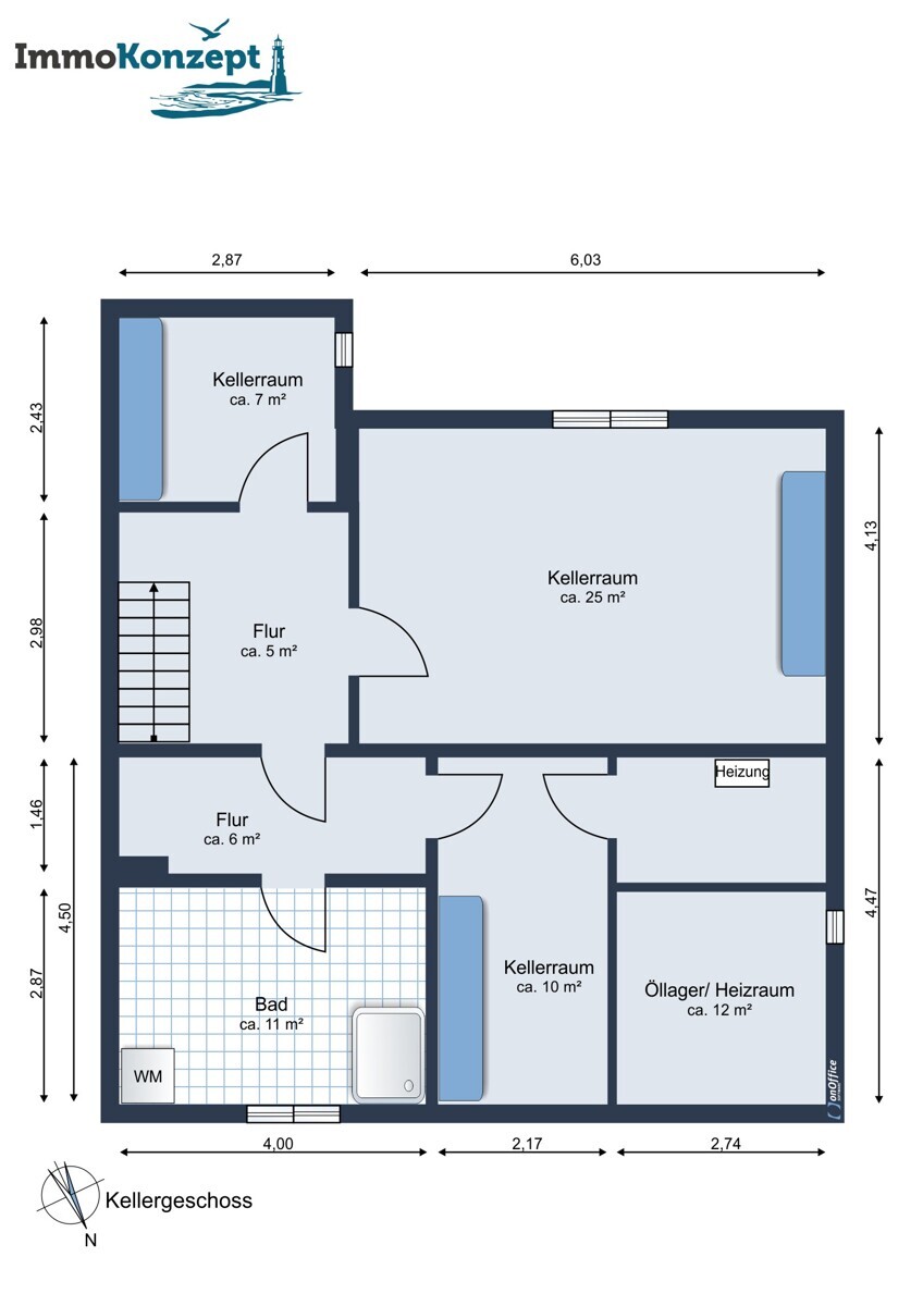
Hinab ins Kellergeschoss
Die praktischen Kellerräume
mit zusätzlicher Nutzfläche
Die Waschküche mit Dusche
Das praktische Dachgeschoss
mit zusätzlicher Ausbaureserve
Grundriss Erdgeschoss
Grundriss Dachgeschoss
Grundriss Kellergeschoss
Objektart
Haus
Objekttyp
Doppelhaushälfte
Vermarktungsart
Kauf
PLZ
17129
Ort
Tutow
ImmoNr
26-142-03
Wohnfläche
ca. 135 m²
Grundstücksgröße
ca. 1.124 m²
Nutzfläche
ca. 160 m²
Anzahl Zimmer
6
Kaufpreis
119.900,00 €
Baujahr
1935
Endenergieverbrauch
152,4 kWh/(m²a)
Energieausweis
Verbrauchsausweis
Energieausweis gültig bis
22.07.2035
Energieeffizienzklasse
E

Beschreibung

Diese großzügige Doppelhaushälfte in Tutow bietet viel Platz, eine durchdachte Raumaufteilung und zahlreiche Nutzungsmöglichkeiten für Familien oder Eigennutzer mit Platzbedarf.
Auf ca. 135 m² Wohnfläche und einem 1.124 m² großen, pflegeleicht angelegten Grundstück vereint die Immobilie Wohnen, Arbeiten und Freizeit auf angenehme Weise.

Das Haus ist voll unterkellert und bietet somit zusätzliche Nutzflächen für Lager, Hobby oder Hauswirtschaft.
Ergänzt wird das Angebot durch eine massive Garage, eine Werkstatt sowie weiteres Nebengelass, die vielfältige Nutzungsmöglichkeiten eröffnen – ideal für Handwerker, Bastler oder zur Unterbringung von Fahrzeugen und Geräten.

Im Erdgeschoss gelangen Sie über einen zentralen Flurbereich in alle Räume.
Hier befinden sich ein Tageslicht-Duschbad, eine Küche sowie ein helles Wohnzimmer mit ca. 24 m², das durch seine angenehme Größe und den Lichteinfall überzeugt.
Ein großzügiges Schlafzimmer mit ca. 23 m² bietet ausreichend Platz für individuelle Gestaltung.

Über eine Holztreppe erreichen Sie das Obergeschoss. Dort befindet sich ein zentraler Wohnbereich mit ca. 19 m² und Zugang zu einem Tageslicht-Wannenbad. Zwei geräumige Kinder- oder Schlafzimmer sowie ein weiteres Zimmer, das sich ideal als Büro oder Gästezimmer eignet, runden diese Ebene ab.

Das Dachgeschoss ist derzeit nicht ausgebaut, befindet sich jedoch in einem guten Zustand und bietet zusätzliche Ausbaureserve für weiteren Wohnraum nach eigenen Vorstellungen.

Das großzügige Grundstück bietet viel Platz für Garten, Freizeit und Erholung und unterstreicht den familienfreundlichen Charakter der Immobilie.

Ein Haus mit viel Raum, solider Substanz und Entwicklungspotenzial – ideal für alle, die sich ihr Zuhause individuell gestalten möchten.

Lage

Tutow ist eine ruhige und familienfreundliche Gemeinde im Landkreis Vorpommern-Greifswald und bietet ideale Voraussetzungen für ein entspanntes Leben im Grünen.
Die Umgebung ist geprägt von gepflegten Wohnhäusern, großzügigen Grundstücken sowie einer gewachsenen Nachbarschaft – perfekt für Familien, die Wert auf Ruhe, Sicherheit und ein angenehmes Wohnumfeld legen.

Die Immobilie befindet sich in einer ruhigen Wohnlage innerhalb des Ortes und verbindet naturnahes Wohnen mit einer guten Infrastruktur.
In Tutow selbst sind wichtige Einrichtungen des täglichen Bedarfs vorhanden, darunter Einkaufsmöglichkeiten, eine Grundschule, Kindertagesstätten sowie ärztliche Versorgung.
Dadurch sind kurze Wege im Alltag gewährleistet, was insbesondere für Familien mit Kindern ein großer Vorteil ist.

Ergänzend bietet die nahegelegene Hansestadt Demmin eine erweiterte Infrastruktur mit weiterführenden Schulen, zusätzlichen Einkaufsmöglichkeiten, Fachärzten sowie kulturellen und sportlichen Angeboten.
Auch die Städte Greifswald und Anklam sind gut erreichbar und erweitern das Angebot an Arbeitsplätzen, Freizeitmöglichkeiten und Dienstleistungen.

Die Umgebung lädt zu vielfältigen Freizeitaktivitäten ein.
Ob Spaziergänge, Fahrradtouren oder Spielen im Grünen – hier genießen Kinder viel Freiraum und Natur.
Gleichzeitig sorgt die gute Verkehrsanbindung dafür, dass Sie flexibel in alle Richtungen unterwegs sind und sowohl das Umland als auch die Ostseeküste bequem erreichen können.

Tutow vereint damit ruhiges, naturnahes Wohnen mit einer alltagstauglichen Infrastruktur – ein idealer Ort für Familien, die ein Zuhause mit Lebensqualität und Entwicklungsmöglichkeiten suchen.

Ausstattung

Die Doppelhaushälfte bietet eine solide bauliche Grundlage und eröffnet gleichzeitig umfangreiche Möglichkeiten zur individuellen Modernisierung und Neugestaltung.
Das Wohnhaus ist in einem altersgerechten Zustand und bedarf entsprechender Renovierungs- und Sanierungsmaßnahmen, um heutigen Wohn- und Energiestandards zu entsprechen.

Wesentliche Modernisierungsmaßnahmen wurden bereits in den vergangenen Jahrzehnten durchgeführt.
In den 1980er-Jahren erfolgte die Neueindeckung des Daches.
Im Jahr 1993 wurde eine Ölzentralheizung der Marke "Wolf" installiert und die Warmwasserleitungen sowie die Heizkörper erneuert.
Ebenfalls in diesem Zeitraum wurden Wand- und Deckengestaltungen sowie teilweise Bodenbeläge überarbeitet.

Die Badezimmer wurden in den 1990er-Jahren modernisiert und entsprechen funktional dem damaligen Standard.
Im Jahr 2000 wurden doppelt verglaste Holzfenster eingebaut, die zur Verbesserung der Wärmedämmung beitragen und den Charakter des Hauses unterstreichen.

Das Dachgeschoss befindet sich in einem guten baulichen Zustand und bietet zusätzliche Ausbaureserve für weiteren Wohnraum. Der Vollkeller stellt zusätzliche Nutzflächen zur Verfügung und eignet sich ideal für Lager, Hauswirtschaft oder Hobby.

Ergänzt wird das Angebot durch eine massive Garage, eine Werkstatt sowie weiteres Nebengelass, die vielseitige Nutzungsmöglichkeiten bieten.

Insgesamt bietet die Immobilie eine solide Substanz mit bereits erfolgten Modernisierungen und gleichzeitig großem Potenzial für eine zeitgemäße Weiterentwicklung nach eigenen Vorstellungen.

Sonstige Angaben

Für deren Richtigkeit, Aktualität und Vollständigkeit können wir keine Gewähr übernehmen.
Irrtümer und Zwischenverkauf bleiben vorbehalten.

Die erforderlichen Modernisierungsmaßnahmen wurden bei der Kaufpreisfindung bereits kaufpreismindernd berücksichtigt.

Art Energieausweis: Verbrauchsausweis
Wesentlicher Energieträger: Öl
Heizung: Ölzentralheizung von 1995
Energieeffizienzklasse: E
Endenergieverbrauch: 152,40 kWh
Baujahr: 1935
Energieausweis gültig bis: 22.07.2035

Ansprechpartner

Herr Hannes Reisich

Immo Konzept Mecklenburg-Vorpommern GmbH

Villenstraße 7
17509 Lubmin

Telefon1

0151 21360982

mobile

0151 21360982

Email

office@immo-konzept-vg.de

Weitere ähnliche Immobilien

Ab sofort nichts mehr verpassen und einfach zum kostenlosen Newsletter anmelden.

Garantiert SPAM-frei, jederzeit kündbar.